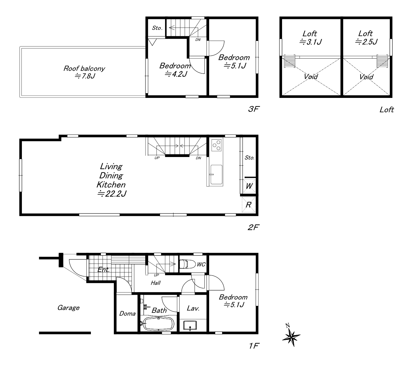
一戸建
| 間取り | 3LDK +ロフト+ルーフバルコニー |
|---|---|
| 建物面積 | 83.46㎡ (約25.24坪) |
| 土地面積 | 56.47㎡ (約17.08坪) |
| 価格 | 22,800万円(税込) |
|---|
Point
◆4路線利用可能◆2021年3月築
◆恵比寿ガーデンプレイスまで徒歩7分
◆広尾プラザ徒歩圏内
| 交通 | JR山手線 「恵比寿」駅徒歩13分 東京メトロ日比谷線「恵比寿」駅徒歩13分 湘南新宿ライン「恵比寿」駅徒歩13分 埼京線「恵比寿」駅徒歩13分 |
|---|
物件概要
| 物件名 | 渋谷区恵比寿・戸建 | ||||
|---|---|---|---|---|---|
| 物件所在地 | 東京都渋谷区恵比寿3丁目 | ||||
| 敷地の権利形態 | 所有権 | ||||
| 建物構造・階数 | 木造3階建 | 築年月 | 2021年3月 | ||
| 建物面積 | 83.46㎡ (約25.24坪) | 総戸数 | 1 | ||
| 土地面積 | 56.47㎡ (約17.08坪) | ||||
| 接道状況 | 西側約4.0m私道(位置指定道路) | ||||
| 地目 | 宅地 | ||||
| 建ぺい率 | 70% | 容積率 | 150% | ||
| 都市計画 | 市街化区域 | 用途地域 | 第一種住居地域 | ||
| 駐車場 | あり | ||||
| 現況 | 空家 | 引渡時期 | 相談 | 取引態様 | 売主 |