一戸建
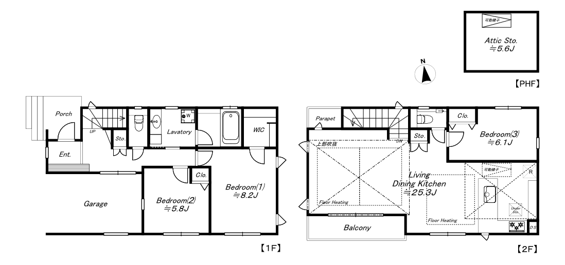
| 間取り | 3LDK+WIC+小屋裏収納 |
|---|---|
| 建物面積 | 123.36㎡(約37.31坪) |
| 土地面積 | 92.57㎡(約28.00坪) |
| 価格 | 17,500万円(税込) |
|---|
Point
◆南西×北西の角地◆2016年4月築
◆3LDK+WIC+小屋裏収納
◆自由が丘、田園調布が生活圏
| 交通 | 東急大井町線 「九品仏」 駅 徒歩9分 東急大井町線 「尾山台」 駅 徒歩10分 |
|---|
物件概要
| 物件名 | 世田谷区奥沢・戸建 | ||||
|---|---|---|---|---|---|
| 物件所在地 | 東京都世田谷区奥沢8丁目 | ||||
| 敷地の権利形態 | 所有権 | ||||
| 建物構造・階数 | 木造2階建 | 築年月 | 2016年4月 | ||
| 建物面積 | 123.36㎡(約37.31坪) | ||||
| 土地面積 | 92.57㎡(約28.00坪) | ||||
| 接道状況 | 北西側約9.8m公道、南西側約4.0m私道(位置指定道路) | ||||
| 地目 | 宅地 | ||||
| 建ぺい率 | 70% | 容積率 | 150% | ||
| 都市計画 | 市街化区域 | 用途地域 | 第二種住居地域 | ||
| 駐車場 | あり | ||||
| 現況 | 空家 | 引渡時期 | 相談 | 取引態様 | 売主 |
設備等
■ガス床暖房(L・D)
■浴室1620サイズ
■シャッター付ビルトイン車庫
※車種による