倉庫
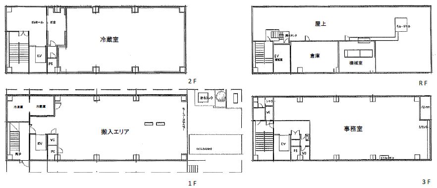
| 間取り | 1F:冷蔵倉庫 2F:冷蔵倉庫 3F:事務所 4F:倉庫・屋上 |
|---|---|
| 建物面積 | 605.54㎡(約183.17坪) |
| 土地面積 | 330.02㎡(約99.83坪) |
| 価格 | 45,500万円(税込) |
|---|
Point
◆自社倉庫として(2026年3月末退去予定)◆投資用物件として
賃料等収入:年額21,385,000円
利回り:約4.70%
◆工業専用地域
◆貨物用EVあり(R5/3改修工事済)
| 交通 | JR京葉線・武蔵野線・東京メトロ有楽町線 「新木場」駅徒歩22分 新木場駅バス12分「東京ヘリポート前」停徒歩6分 |
|---|
物件概要
| 物件名 | 江東区新木場・冷蔵倉庫+事務所 | ||||
|---|---|---|---|---|---|
| 物件所在地 | 東京都江東区新木場4丁目 | ||||
| 敷地の権利形態 | 所有権 | ||||
| 建物構造・階数 | 鉄骨造4階建 | 築年月 | 1989年10月 | ||
| 建物面積 | 605.54㎡(約183.17坪) | ||||
| 土地面積 | 330.02㎡(約99.83坪) | ||||
| 接道状況 | 東側12.0m公道 | ||||
| 地目 | 宅地 | ||||
| 建ぺい率 | 60% | 容積率 | 200% | ||
| 都市計画 | 市街化区域 | 用途地域 | 工業専用地域 | ||
| 駐車場 | あり(無料) | ||||
| 現況 | 賃貸中(2026年3月末退去予定) | 引渡時期 | 相談 | 取引態様 | 売主 |
設備等
1F:冷蔵庫
2F:冷蔵庫