倉庫
| 間取り | 倉庫・工場 |
|---|---|
| 建物面積 | 259.23㎡(約78.41坪) |
| 土地面積 | 198.01㎡(約59.89坪) |
| 価格 | 12,500万円(税込) |
|---|
Point
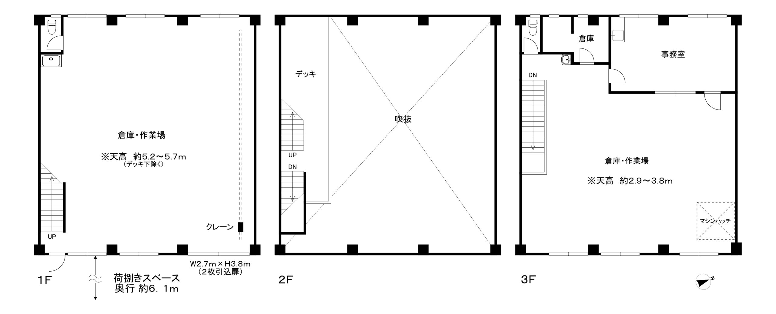
◇工業専用地域◇物流倉庫、作業所、資材置場など
◇平和島ICまで約3.5km
| 交通 | 首都高速羽田線 平和島IC 約3.5km 東京モノレール「昭和島」駅約2.4km 京急本線「平和島」駅バス13分「京浜三番地」停徒歩3分 |
|---|
物件概要
| 物件名 | 大田区京浜島・倉庫/工場-Ⅱ | ||||
|---|---|---|---|---|---|
| 物件所在地 | 東京都大田区京浜島2丁目 | ||||
| 敷地の権利形態 | 所有権 | ||||
| 建物構造・階数 | 鉄骨造3階建(区分) | 築年月 | 1983年4月 | ||
| 建物面積 | 259.23㎡(約78.41坪) | ||||
| 土地面積 | 198.01㎡(約59.89坪) | ||||
| 接道状況 | 南東側約6m私道(位置指定道路) | ||||
| 地目 | 宅地 | ||||
| 建ぺい率 | 60% | 容積率 | 200% | ||
| 都市計画 | 市街化区域 | 用途地域 | 工業専用地域 | ||
| 駐車場 | あり(無料) | ||||
| 現況 | 空室 | 引渡時期 | 相談 | 取引態様 | 売主 |