一戸建
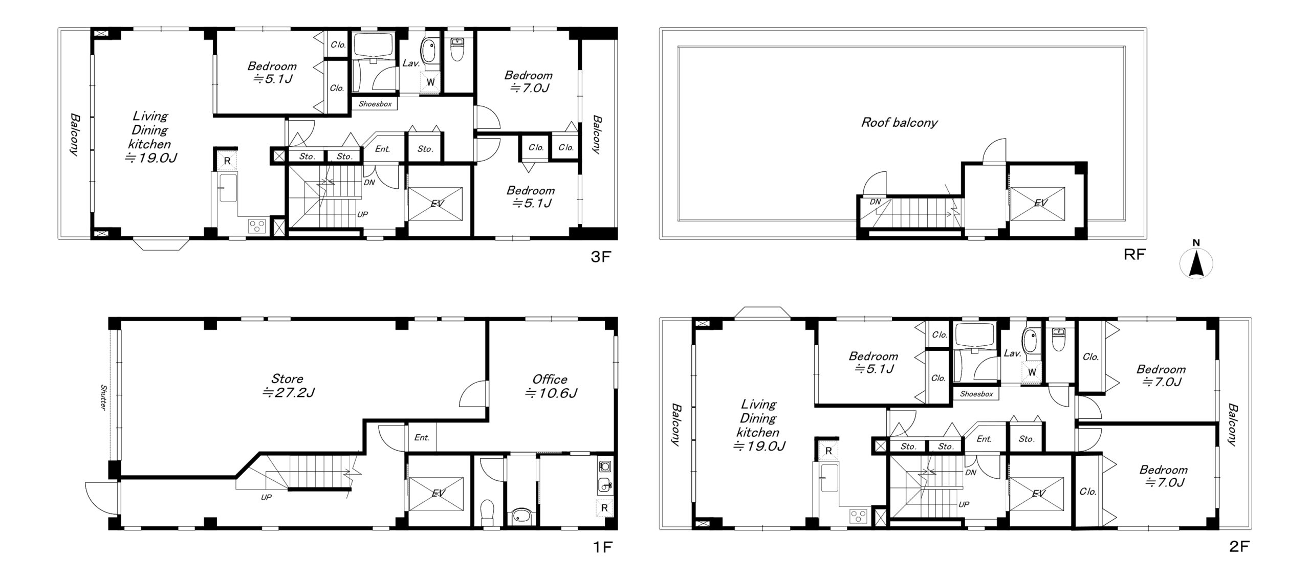
| 間取り | 1階/店舗・事務所 2階/3LDK 3階/3LDK |
|---|---|
| 建物面積 | 286.89㎡(約86.78坪) |
| 土地面積 | 165.00㎡(約49.91坪) |
| 価格 | 17,500万円(税込) |
|---|
Point
◆都営三田線高島平徒歩2分◆南側約15.9m公道
◆3台駐車可
◆市場通り沿い
◆エレベーターあり
◆屋上ルーフバルコニー
◆1階賃貸中、収入を得ながら自己使用、二世帯、投資としても利用可能
◆リフォーム中です。
| 交通 | 都営三田線「高島平」駅徒歩2分 |
|---|
物件概要
| 物件名 | 板橋区高島平・一棟ビル | ||||
|---|---|---|---|---|---|
| 物件所在地 | 東京都板橋区高島平8丁目 | ||||
| 敷地の権利形態 | 所有権 | ||||
| 建物構造・階数 | 鉄骨造3階建 | 築年月 | 1999年11月 | ||
| 建物面積 | 286.89㎡(約86.78坪) | 総戸数 | 3 | ||
| 土地面積 | 165.00㎡(約49.91坪) | ||||
| 接道状況 | 南側約15.9m公道(市場通り沿い) | ||||
| 地目 | 雑種地 | ||||
| 建ぺい率 | 60% | 容積率 | 100% | ||
| 都市計画 | 市街化区域 | 用途地域 | 第一種中高層住居専用地域 | ||
| 駐車場 | あり(3台可能) | ||||
| 現況 | 一部 | 引渡時期 | 相談 | 取引態様 | 売主 |