一戸建
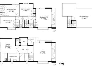
| 間取り | 3SLDK+ルーフバルコニー |
|---|---|
| 建物面積 | 124.83㎡(約39.22坪) |
| 土地面積 | 129.66㎡(約39.22坪) |
| 価格 | 23,600万円(税込) |
|---|
Point
◆南側約5.3m公道面◆並列2台駐車可
◆屋上ルーフバルコニー
| 交通 | 東急目黒線「洗足」駅徒歩5分 東急目黒線「西小山」駅徒歩9分 東急大井町線「北千束」駅徒歩10分 |
|---|
物件概要
| 物件名 | 品川区小山・戸建 | ||||
|---|---|---|---|---|---|
| 物件所在地 | 東京都品川区小山7丁目 | ||||
| 敷地の権利形態 | 所有権 | ||||
| 建物構造・階数 | 木造2階建 | 築年月 | 2007年3月 | ||
| 建物面積 | 124.83㎡(約39.22坪) | ||||
| 土地面積 | 129.66㎡(約39.22坪) | ||||
| 主要採光面 | 南 | ||||
| 接道状況 | 南側約5.3m公道 | ||||
| 地目 | 宅地 | ||||
| 建ぺい率 | 50% | 容積率 | 100% | ||
| 都市計画 | 市街化区域 | 用途地域 | 第一種低層住居専用地域 | ||
| 駐車場 | あり | ||||
| 現況 | 空家 | 引渡時期 | 相談 | 取引態様 | 売主 |